Wellford Residence

RESIDENTIAL | ADDITION RENOVATION

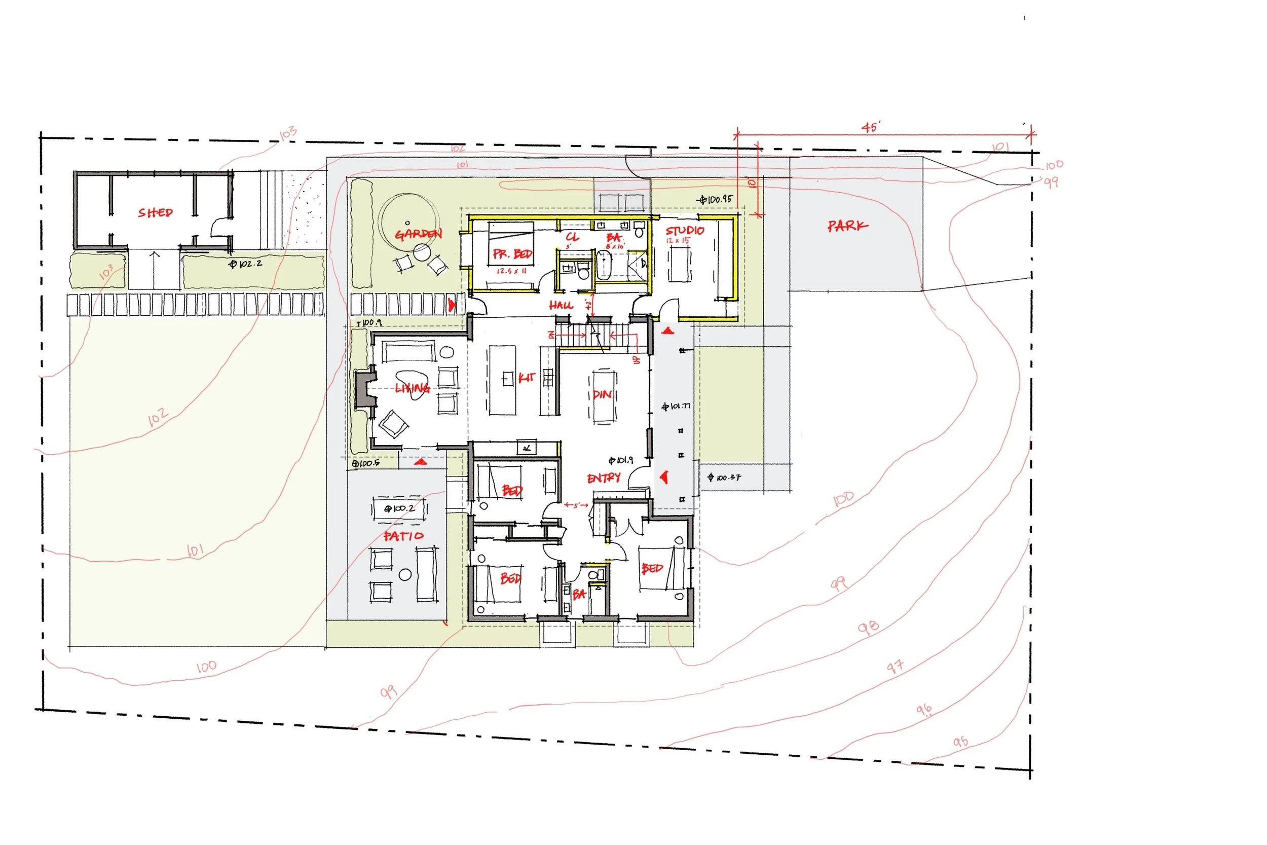
We repositioned the stair and added a narrow addition on the side of the house to meet the needs of a growing family and business.

COMPLETED
JUNE 2024
 

CONTRACTOR 
HINGE

TYPE
RENOVATION / ADDITION

LOCATION
CHARLOTTESVILLE, VA

PROJECT OVERVIEW

With three growing kids and a new business, the clients of this one story rancher approached us with the desire to add some much needed space to an outdated floorplan. Working between the existing house and tight side setback, we worked thoughtfully squeeze in a new primary suite, studio/office, and secondary entrance to the house. This new entrance offers a more private place for clients reach the client’s studio design office and also houses custom cabinetry for the familys backpacks and coats. In the existing portion of the house, we thoughtfully repositioned the stairs to create a larger new kitchen. At the living room, a new vaulted ceiling and more glazing better connects the space with the backyard. Lastly, the renovated dining room and connected entry also boast large sliding doors to the front porch with a beautiful oak scrim at the stair.

A focus on warm, natural materials and more natural light help to create inviting spaces in which to live and work.

MORE WORK